PRODUCT
Location: Home>PRODUCT
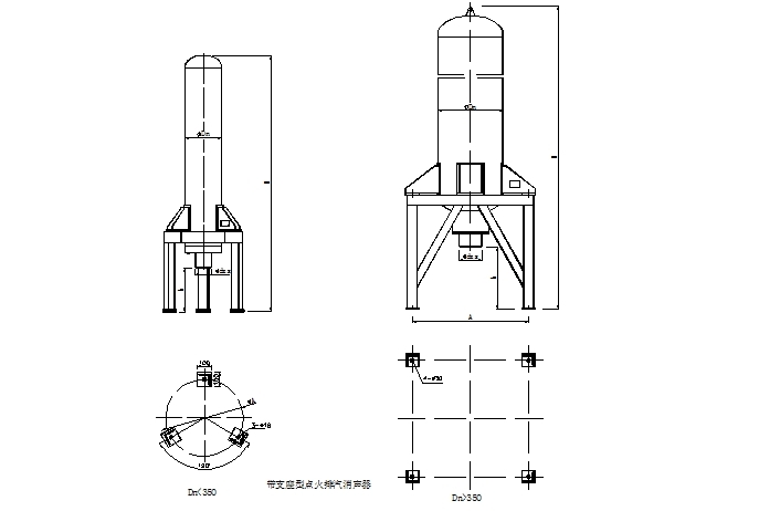
Installation dimension drawing of muffler with support
| name | Dn | A | B | h | c | d | m |
| Ignition exhaust muffler | 159 | 330 | 410 | 280 | 100 | 80 | 20 |
| 219 | 400 | 480 | 290 | 100 | 80 | 20 | |
| 325 | 500 | 600 | 325 | 150 | 100 | 27 | |
| 480 | 700 | 800 | 360 | 150 | 100 | 27 |
| name | Dn | A | B | h | c | d | m |
| Safety valve exhaust silencer | 377 | 600 | 700 | 335 | 150 | 100 | 27 |
| 412 | 600 | 700 | 345 | 150 | 100 | 27 | |
| 480 | 700 | 800 | 365 | 150 | 100 | 27 | |
| 562 | 750 | 870 | 430 | 160 | 120 | 27 | |
| 612 | 800 | 920 | 440 | 160 | 120 | 27 | |
| 662 | 850 | 970 | 450 | 160 | 120 | 27 | |
| 712 | 900 | 1020 | 465 | 160 | 120 | 27 | |
| 762 | 950 | 1070 | 480 | 160 | 120 | 27 | |
| 812 | 1000 | 1050 | 540 | 180 | 150 | 27 | |
| 862 | 1050 | 1200 | 550 | 180 | 150 | 27 | |
| 912 | 1100 | 1250 | 570 | 200 | 150 | 30 | |
| 1012 | 1200 | 1350 | 590 | 220 | 150 | 30 |
